CAD (Computer Aided Design) ist seit mehr als 20 Jahren ein Schwerpunkt meiner beruflichen Tätigkeiten, sowohl als Lehrer in der beruflichen Bildung und Technischen Universität Berlin als auch in der praktischen Arbeit als Innenarchitekt und Designer. Mein Spezialgebiet ist die Software der Firma Autodesk (AutoCAD, 3D Max und Autocad Architecture) für technische Zeichnungen , 3D Entwurf und Visualisierungen .
Training , Schulungen, Entwurf und Erstellen von Zeichnungen auf Anfrage (Kontakt)
![]() |
![]() |
![]() |
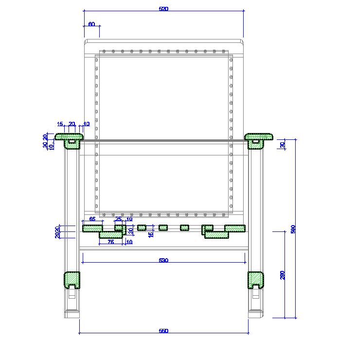
Möbeldesign
![]() |
![]() |
![]() |
Innenausbau
![]() |
![]() |
![]() |
Architektur
![]() |
![]() |










